قسم الميكروكنترولر والروبوت ودوائر الاتصال بالحاسب الالي قسم المتحكمات الـ microcontroller و المعالجات microprocessor و التحكم الرقمي بالكمبيوتر CNC والانظمة الآلية والروبوت Robots

أدوات الموضوع

الصورة الرمزية vie.logic
vie.logic
:: مهندس متميز ::
تاريخ التسجيل: Nov 2011
الدولة: المغرب
المشاركات: 367
نشاط [ vie.logic ]
قوة السمعة:0
قديم 13-03-2013, 10:53 PM المشاركة 1   
Smile اين الخطأ في مبرمجتان متطابقتان تقريبا Twitter FaceBook Google+



السلام عليكم
لدي مبرمجتان تقريبا متطابقتان مع اختلاف واحد
الاولى

http://www.eeweb.com/project/circuit...rom-programmer



الثانية

http://rbt-techdepot.blogspot.com/20...rogrammer.html
http://4.bp.blogspot.com/-FkGEw6xRSS...600/Snap10.jpg



بعد ان حرت في تحديد ايهما تعمل و لا خطأ فيها لاني اريد ان انفذها

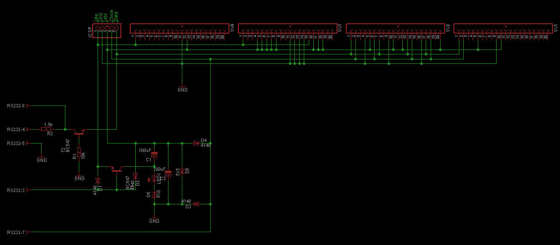
الاشارة فالاختلاف يوجد في التوصيلة الخامسة للمنفذ RS232 على ما اظن
اريد ان استشير اهل الخبرة و المحترفين ايها تعمل بدون مشاكل

و جزاكم الله خيرا

اعلانات

الصورة الرمزية vie.logic
vie.logic
:: مهندس متميز ::
تاريخ التسجيل: Nov 2011
الدولة: المغرب
المشاركات: 367
نشاط [ vie.logic ]
قوة السمعة:0
قديم 14-03-2013, 05:39 PM المشاركة 2   
افتراضي


لااااااااا جواب

اعلانات اضافية ( قم بتسجيل الدخول لاخفائها )
  

فهد المنصور
:: مؤسس موقع القرية الالكترونية ::
تاريخ التسجيل: Feb 2004
المشاركات: 11,350
نشاط [ فهد المنصور ]
قوة السمعة:317
قديم 14-03-2013, 08:04 PM المشاركة 3   
افتراضي


تم نقل الموضوع الى القسم المختص بالبرمجة والاتصال بالكمبيوتر


الصورة الرمزية vie.logic
vie.logic
:: مهندس متميز ::
تاريخ التسجيل: Nov 2011
الدولة: المغرب
المشاركات: 367
نشاط [ vie.logic ]
قوة السمعة:0
قديم 15-03-2013, 12:37 AM المشاركة 4   
Smile


تم نقل الموضوع الى القسم المختص بالبرمجة والاتصال بالكمبيوتر

مشكور اخي فهد


الصورة الرمزية vie.logic
vie.logic
:: مهندس متميز ::
تاريخ التسجيل: Nov 2011
الدولة: المغرب
المشاركات: 367
نشاط [ vie.logic ]
قوة السمعة:0
قديم 17-03-2013, 07:18 AM المشاركة 5   
افتراضي


لا جواببببببببببببب


Tico
:: عضو ذهبي ::
تاريخ التسجيل: May 2012
المشاركات: 1,426
نشاط [ Tico ]
قوة السمعة:117
قديم 17-03-2013, 06:48 PM المشاركة 6   
افتراضي


السلام عليكم
لدي مبرمجتان تقريبا متطابقتان مع اختلاف واحد
الاولى

http://www.eeweb.com/project/circuit...rom-programmer



الثانية

http://rbt-techdepot.blogspot.com/20...rogrammer.html
http://4.bp.blogspot.com/-FkGEw6xRSS...600/Snap10.jpg



بعد ان حرت في تحديد ايهما تعمل و لا خطأ فيها لاني اريد ان انفذها

الاشارة فالاختلاف يوجد في التوصيلة الخامسة للمنفذ RS232 على ما اظن
اريد ان استشير اهل الخبرة و المحترفين ايها تعمل بدون مشاكل

و جزاكم الله خيرا
السلام عليكم
التجربة هي التي ستحدد من تعمل منهما ومن لا تعمل ..
و بالنسبة للاولى الموجودة في الرابط المرفق:
http://www.eeweb.com/project/circuit...rom-programmer
فهي مجربة من أعضاء كان لهم دور كبير في دورات الميكروكونترولر و هم جديرون بالثقة ..
ربما تخلوا حاليا عن هذه المبرمجة الى ما هو أفضل منها ، لكنها ذكرت سابقا في مواضيع لهم ..


الصورة الرمزية vie.logic
vie.logic
:: مهندس متميز ::
تاريخ التسجيل: Nov 2011
الدولة: المغرب
المشاركات: 367
نشاط [ vie.logic ]
قوة السمعة:0
قديم 18-03-2013, 07:47 AM المشاركة 7   
Smile


السلام عليكم
التجربة هي التي ستحدد من تعمل منهما ومن لا تعمل ..
و بالنسبة للاولى الموجودة في الرابط المرفق:
http://www.eeweb.com/project/circuit...rom-programmer
فهي مجربة من أعضاء كان لهم دور كبير في دورات الميكروكونترولر و هم جديرون بالثقة ..
ربما تخلوا حاليا عن هذه المبرمجة الى ما هو أفضل منها ، لكنها ذكرت سابقا في مواضيع لهم ..
مشكور اخي على المعلومة

إضافة رد

العلامات المرجعية

«     الموضوع السابق       الموضوع التالي    »
أدوات الموضوع

الانتقال السريع إلى


الساعة معتمدة بتوقيت جرينتش +3 الساعة الآن: 05:25 AM
موقع القرية الالكترونية غير مسؤول عن أي اتفاق تجاري أو تعاوني بين الأعضاء
فعلى كل شخص تحمل مسئولية نفسه إتجاه مايقوم به من بيع وشراء وإتفاق وأعطاء معلومات موقعه
التعليقات المنشورة لا تعبر عن رأي موقع القرية الالكترونية ولايتحمل الموقع أي مسؤولية قانونية حيال ذلك (ويتحمل كاتبها مسؤولية النشر)

Powered by vBulletin® Version 3.8.6, Copyright ©2000 - 2026